CONTACT

︎



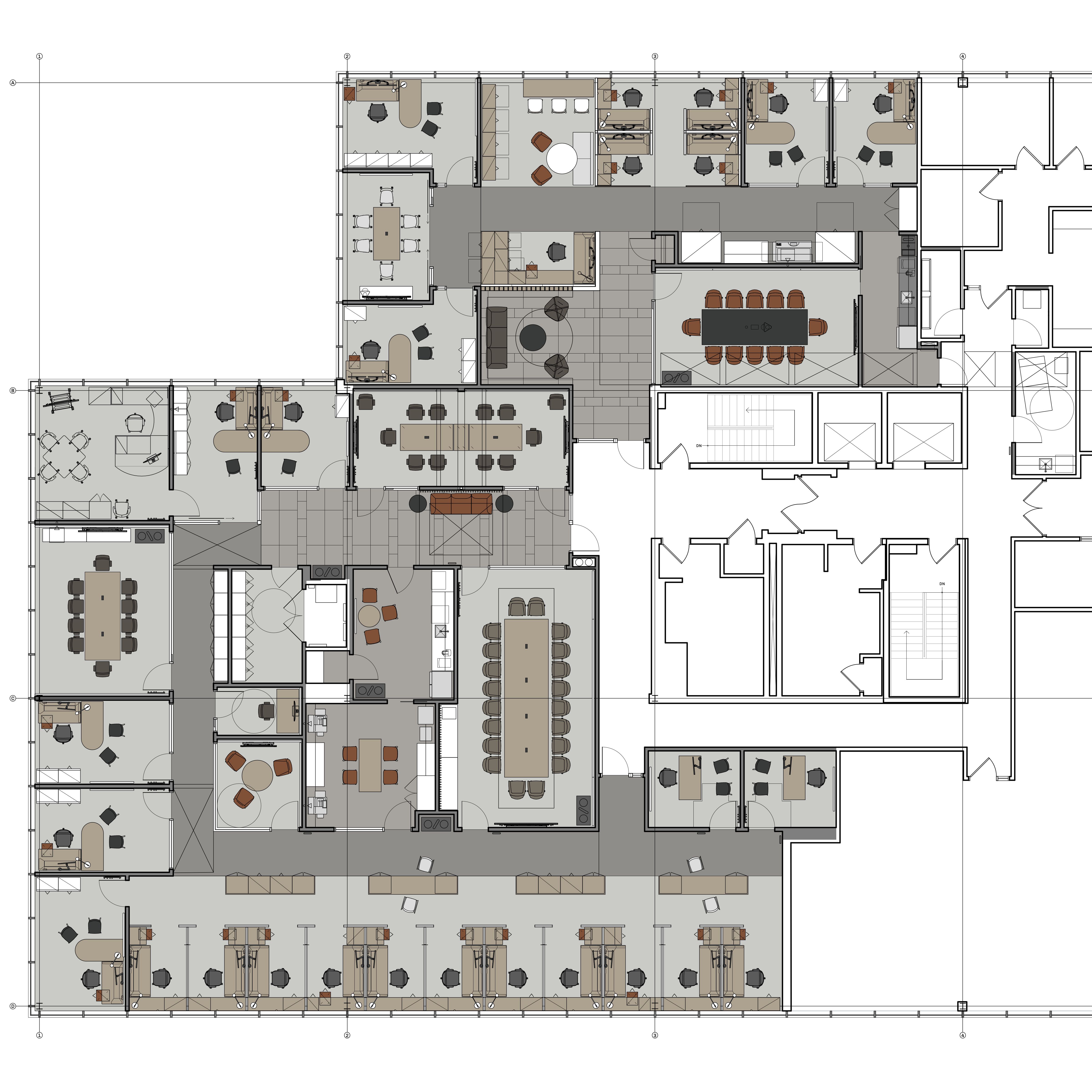
619 Alexander Road Renovation
Info

Completed: Phased, 2021-2025

Location: Princeton, NJ

Photographer: Robert Biddle

MEP Engineer: J+M Engineering

General Contractor: C Raymond Davis; Irwin & Leighton

Photographer: Megan Acosta


This 6,200 SF office suite was renovated for the Office of the Dean for Research. The floor plan flips workstations and shared spaces to the windows and allows daylight to filter through to the interior offices. The entry features an illuminated ceiling cove and rift sawn white oak wall panels. Infrastructure was carefully organized and felt clad pendant lights were utilized to increase acoustic comfort in the open work areas.

Close