CONTACT

CONTACT


Joshua Janisak, RA
Robert Biddle, RA



705 S. Schell St.
Philadelphia, PA 19147

︎



ReAnimator Coffee, Fishtown
Info

Completed: 2013

Location: Philadelphia, PA

Close


ReAnimator Coffee, South Philly
Info

Completed: 2020

Location: Philadelphia, PA

MEP Engineer: J+M Engineering

Close


ReAnimator Coffee, East Mount Airy
Info

Completed: 2026

Location: Philadelphia, PA

MEP Engineer: J+M Engineering

General Contractor: Poplar Construction

Close


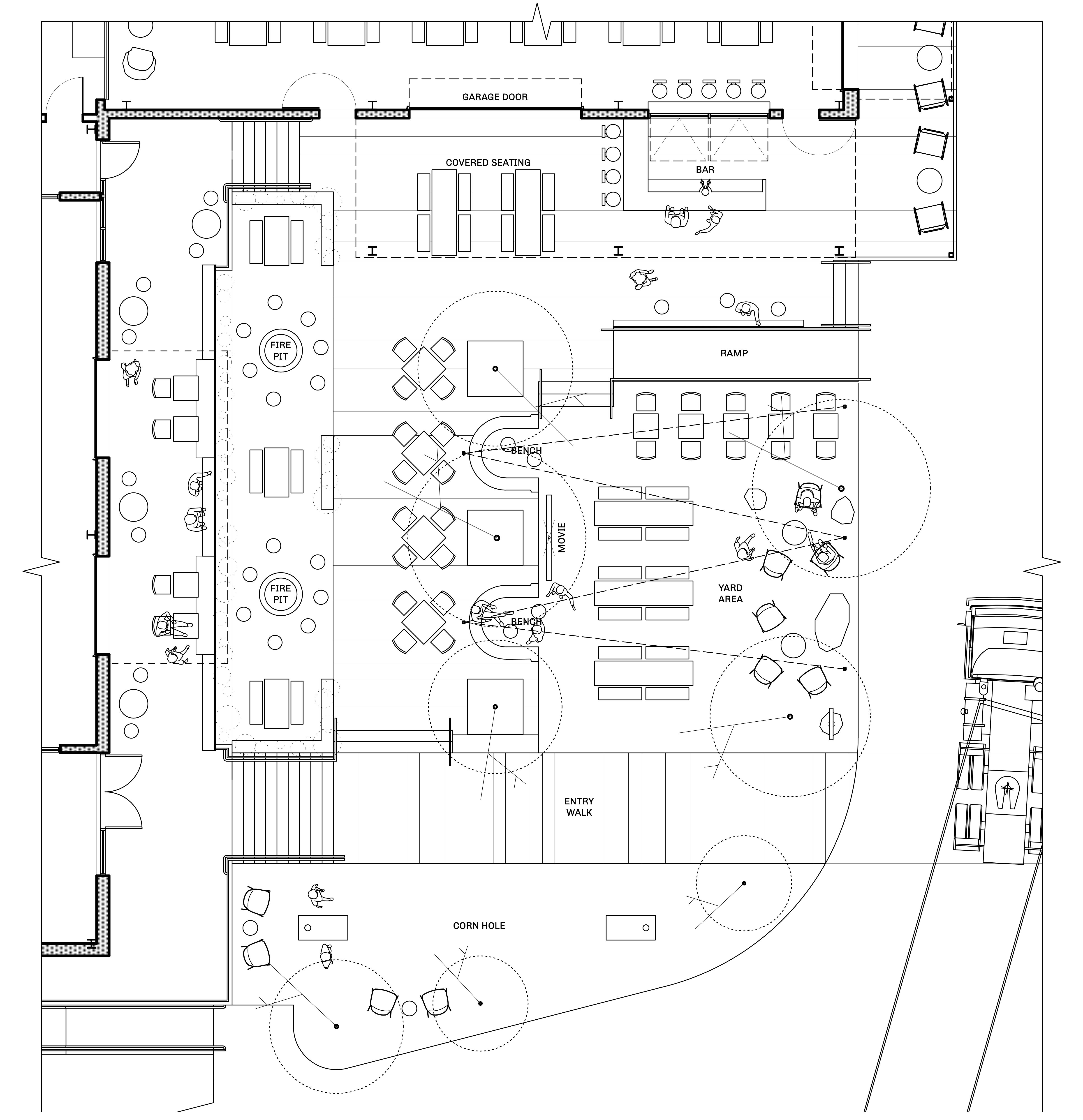
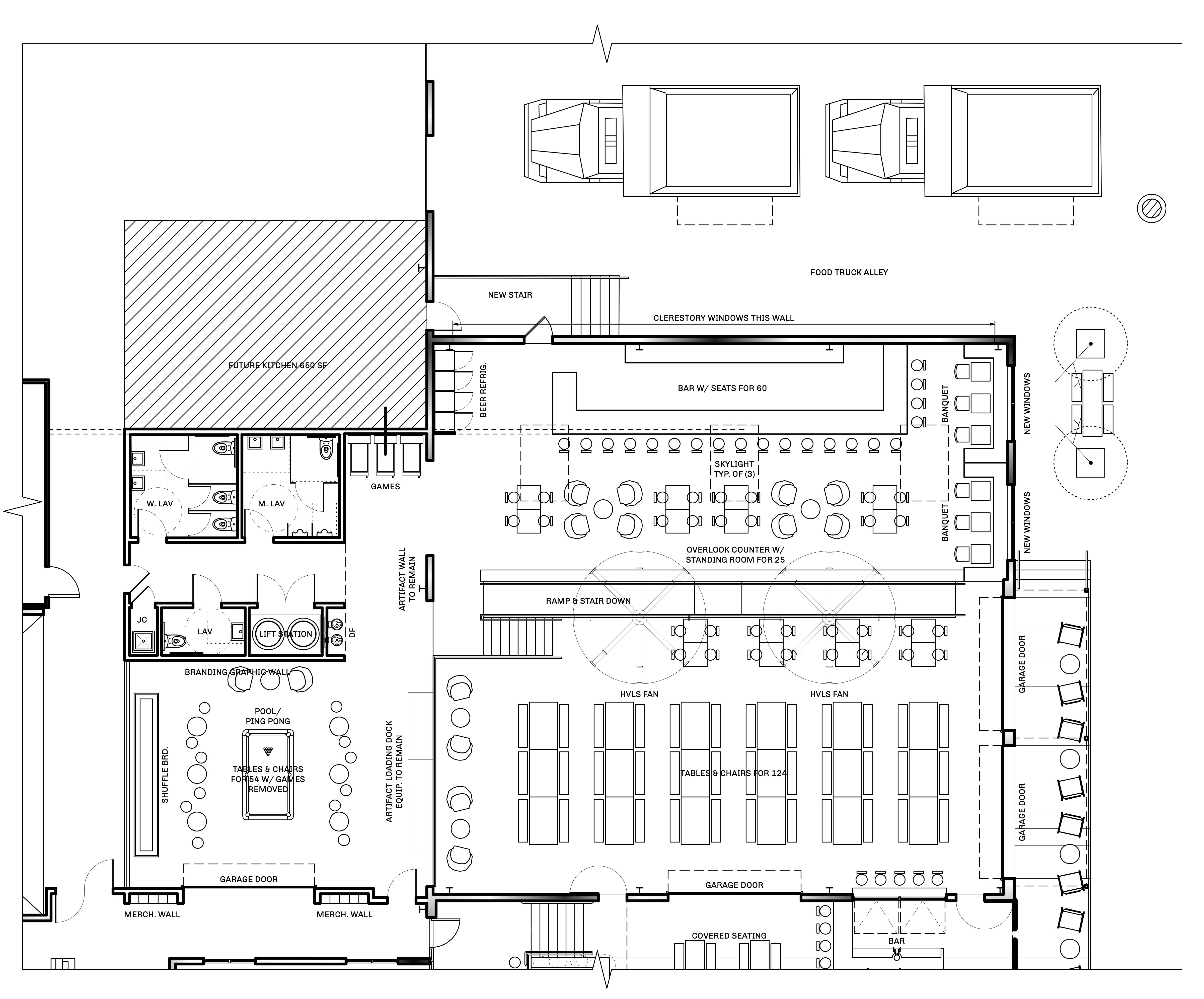
Work Horse Brewing, Outdoor Patio and Taproom Expansion
Info

Designed: 2020 (Unbuilt)

Location: King of Prussia, PA

Close


Pizzeria, East Kensington
Info

Completed: 2021

Location: Philadelphia, PA

MEP Engineer: J+M Engineering

Close