CONTACT

CONTACT


Joshua Janisak, RA
Robert Biddle, RA



705 S. Schell St.
Philadelphia, PA 19147

︎



Calvary Bible Fellowship Church
Info

Completed: 2021

Location: Coopersberg, PA

MEP Engineer: P Squared Consulting Engineers

Structural Engineer: Larsen & Landis Structural Engineers

General Contractor: Jerdon Construction, LLC

Photographer: Megan Acosta


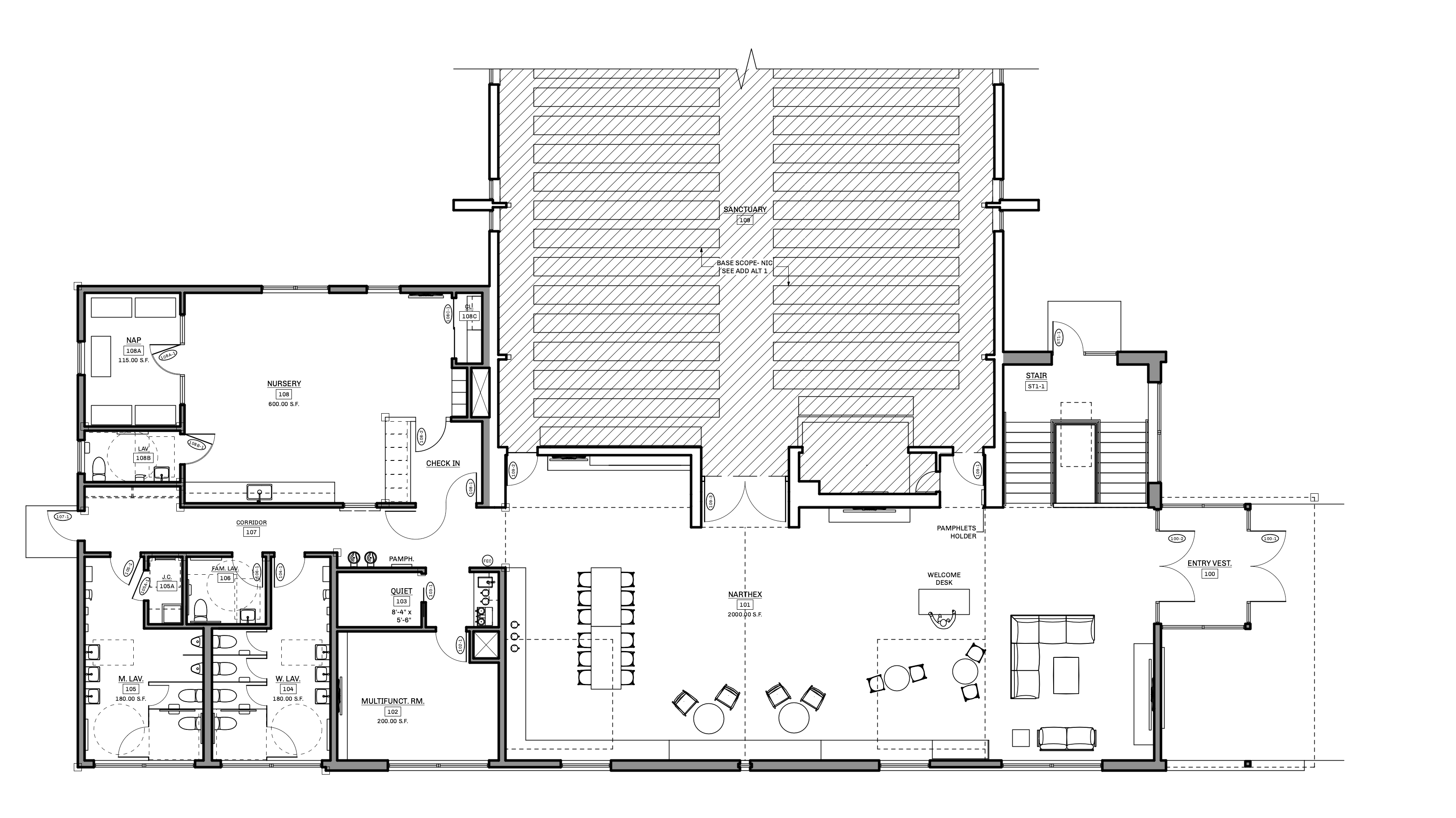
Cavalry Bible Fellowship Church realized that their current facility was not ideally suited to their goals of outreach to the Coopersburg community and growing their congregation. Our task was to see the church with new eyes - We centered the renovations and additions on improving the experience of a first time visitor, making the facility accessible to people who don’t feel comfortable in a traditional church environment, and improving teaching spaces to advance the Church’s educational ministry.

Close