CONTACT

CONTACT


Joshua Janisak, RA
Robert Biddle, RA



705 S. Schell St.
Philadelphia, PA 19147

︎



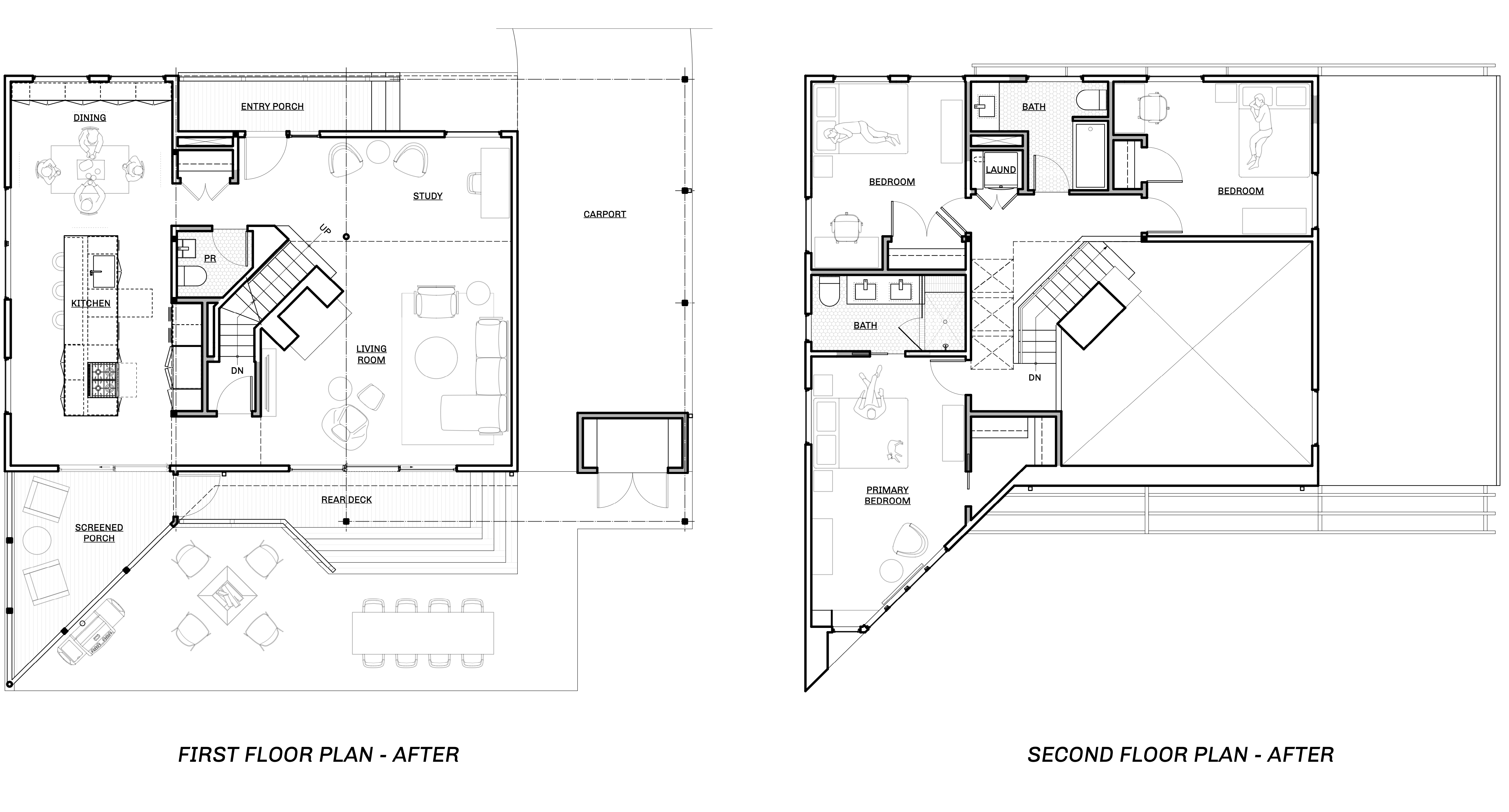
Princeton Residence 1
Info

Completed: 2023

Location: Princeton, NJ

Builder: Pianka Construction


The residence, originally constructed in 1971 and designed by R. Scofidio, had been unoccupied for several years. To revitalize the property, our firm undertook a comprehensive restoration, which included "selective opening" of the first floor and the addition of a full bath and a third bedroom on the second floor to enhance its value. The front of the home presents a tall, rigid mass when viewed from the street, while our design approach prioritized openness, illumination, and integration with the surrounding environment at the rear of the structure. Entry points were accentuated with natural cedar cladding. The interior design scheme used a tranquil palette, clean and understated detailing, and playful pops of color in private areas to complement the mid-century modern aesthetic.

Close