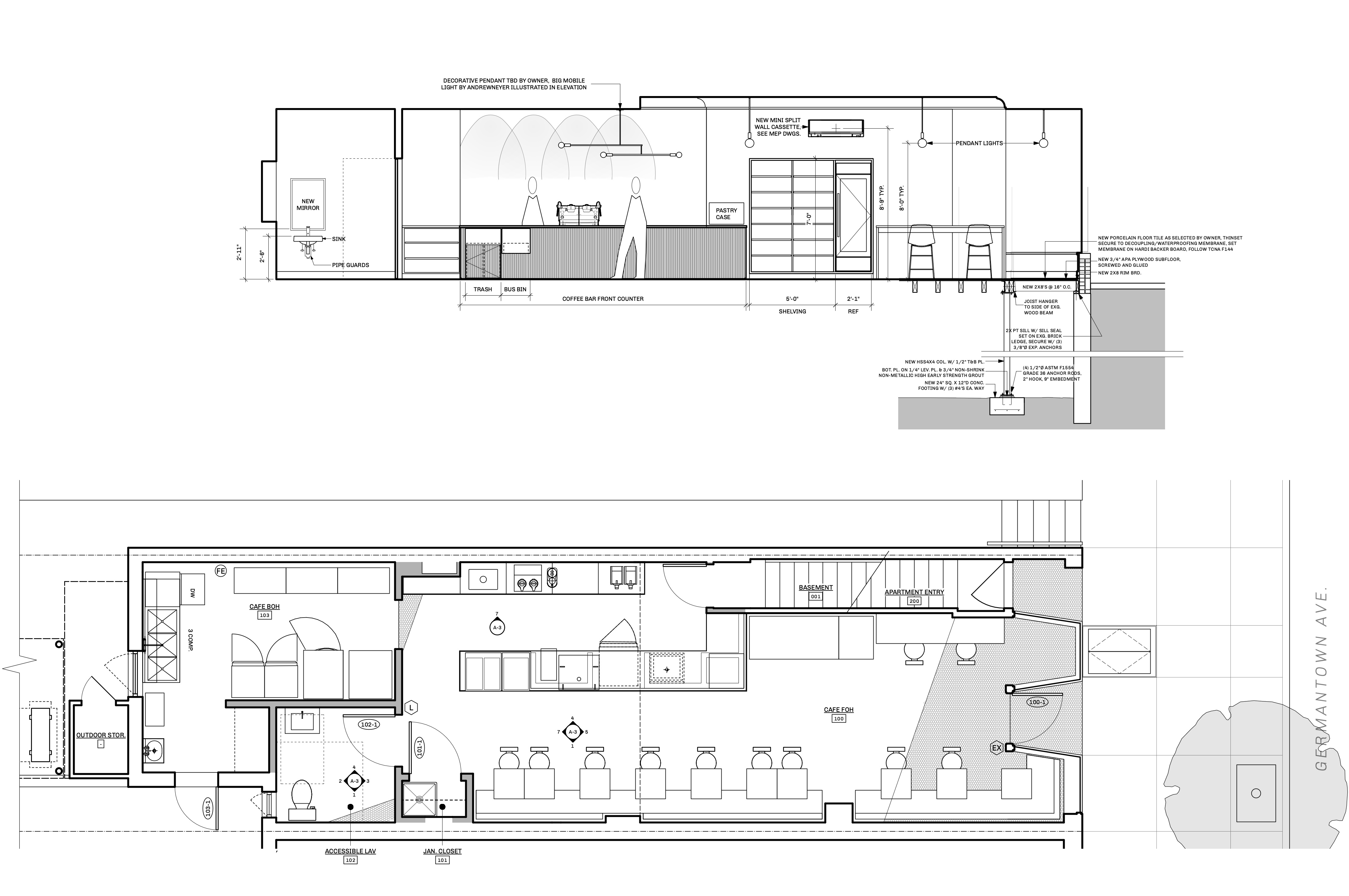
ReAnimator Coffee, East Mount Airy
Info
Completed: 2026
Location: Philadelphia, PA
MEP Engineer: J+M Engineering
General Contractor: Poplar Construction
CloseCompleted: 2026
Location: Philadelphia, PA
MEP Engineer: J+M Engineering
General Contractor: Poplar Construction
Close