CONTACT

CONTACT


Joshua Janisak, RA
Robert Biddle, RA



705 S. Schell St.
Philadelphia, PA 19147

︎



Schell Street Residence - Envelope Restoration
Info

Completed: 2019

Location: Philadelphia, PA

Photographer: Josh Janisak


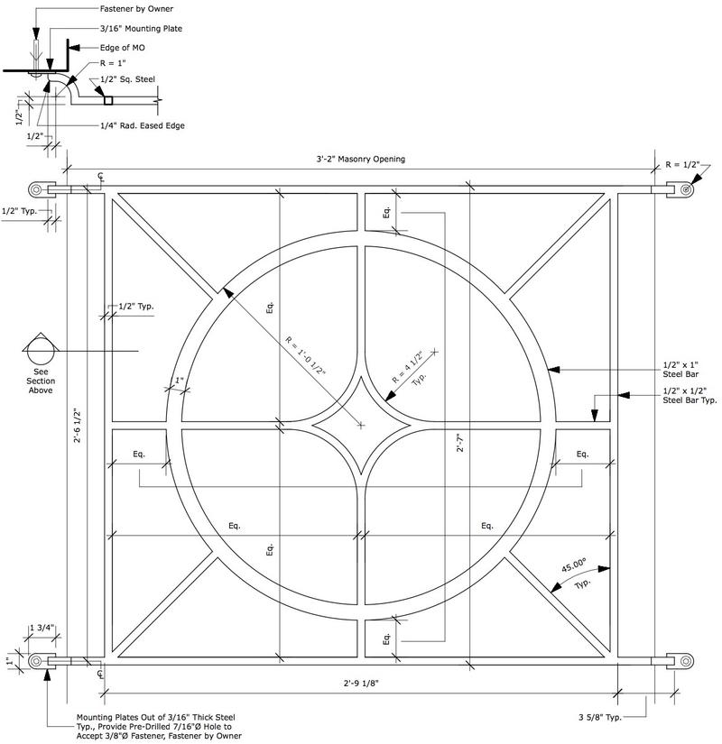
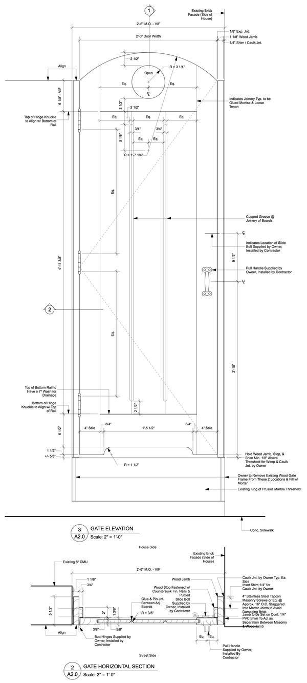
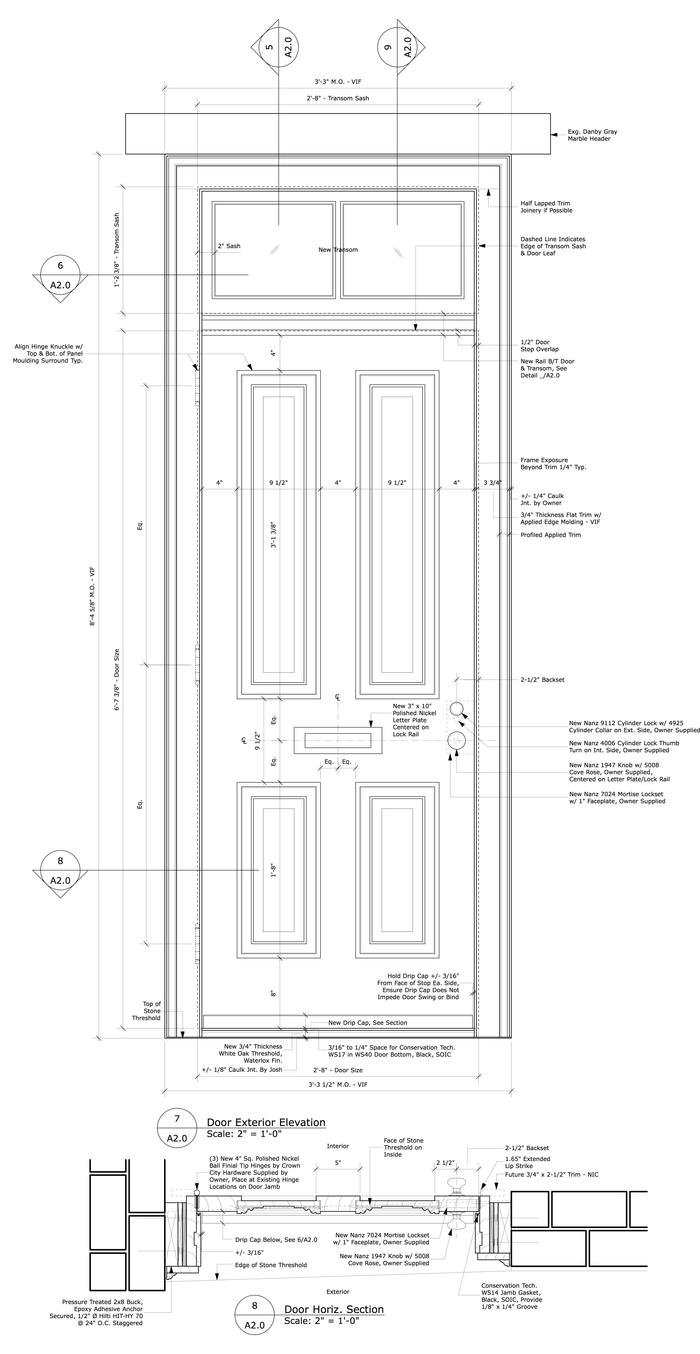
Extensive masonry repairs began with the removal of non-native and spalled brick, rebuilding large sections of the bearing walls where required. New marble headers and sills were inserted at all window and door openings. The front façade was repointed with natural hydraulic lime mortar, tooled to a beveled ridge profile. Deteriorated stucco on the sides of the house was repaired with new NHL stucco and lime painted. New SBS modified bitumen roofing and a custom lead coated copper cornice was installed. The chimney was rebuilt from the ground up, relined with double walled stainless steel chimney pipe, and topped with a sheet metal cap. Existing wood double hung windows were restored. Other improvements include new custom window grates, sidewalk doors, light fixtures, waterjet cut house numbers, electrical service entrance, downspout boxing, gate door, and front door with transom.

Close