CONTACT

CONTACT


Joshua Janisak, RA
Robert Biddle, RA



705 S. Schell St.
Philadelphia, PA 19147

︎



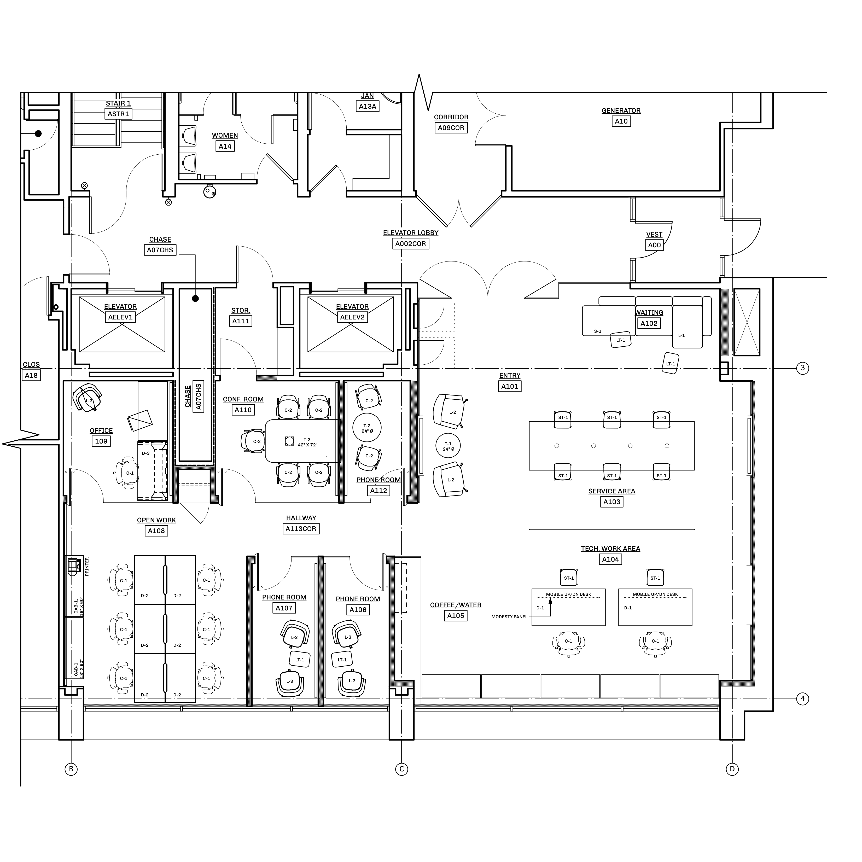
The Point, Princeton University
Info

Completed: 2025

Location: Princeton, NJ

MEP Engineer: Seeler Smith Associates

General Contractor: Lyman Construction

Photographer: Megan Acosta


The goal of the project was to create an easily accessible and convenient service center for students to interface with various University Services, as well as touchdown space for University Services staff. The Point is in one of the lower levels of a highrise building on campus, which presented several design challenges. We used expanses of luminous panels and glass to help create a feeling of spaciousness and openness in an area of relatively low ceiling heights. Making The Point highly visible was another challenge. We responded to this by designing an orange acoustical felt accent wall with a corner-wrapping graphic sign that is visible from the entry doors.

Close