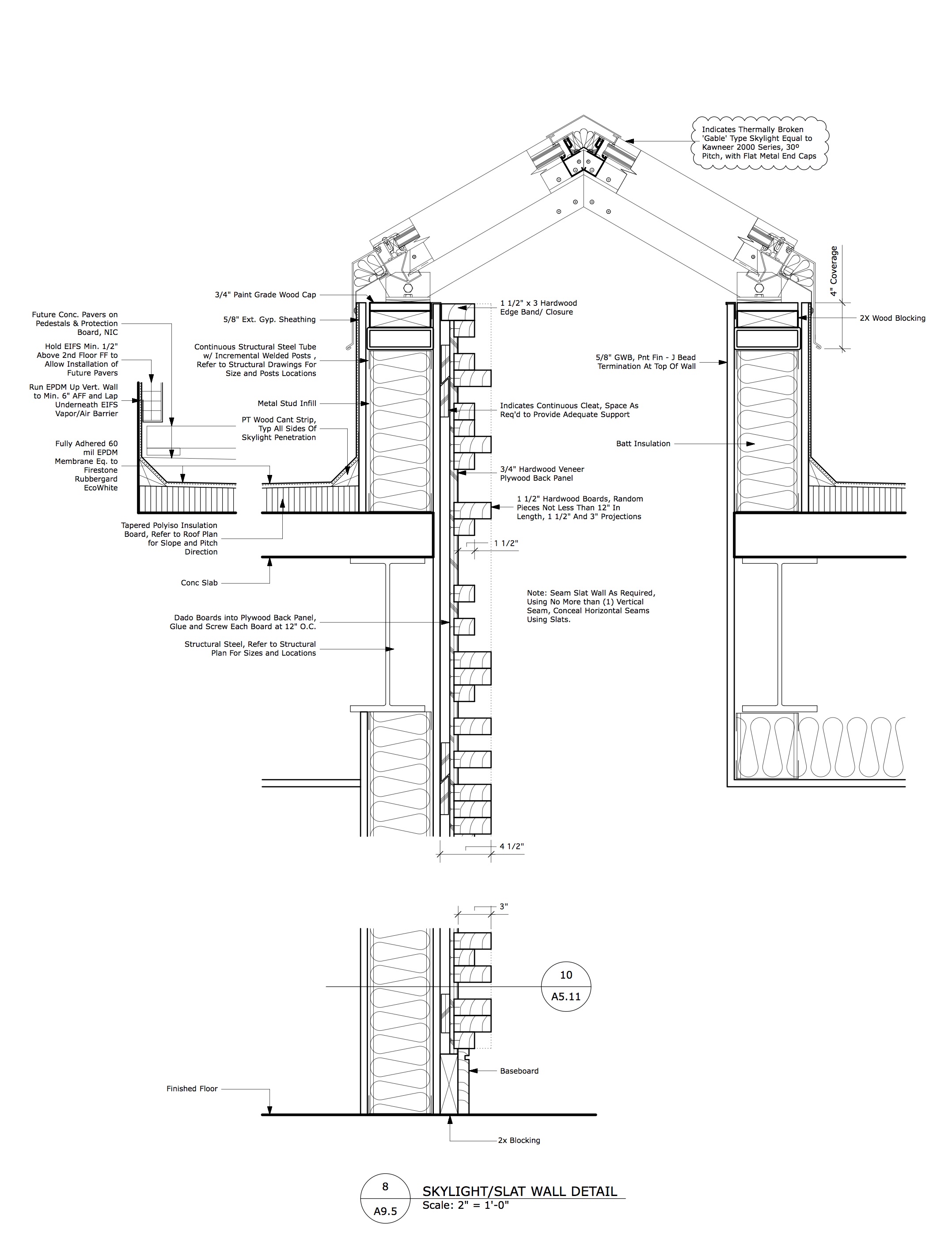
Chestnut Hill Friends Meetinghouse
(Associate-in-Charge, with James Bradberry Architects)This Quaker Meeting expands its mission by constructing a new Meetinghouse with spaces for worship, socializing, outreach, emergency shelter, and education. Notably, the building contains a Skyspace by renowned artist James Turrell the execution of which required meticulous coordination between Architect, Artist, and Builders. Gradually shifting colored light broadcasts onto the vaulted ceiling and above the knife-edge aperture, interacting with the rising or setting sun to create a contemplative focus inside the room. Congruent with the Meeting’s values, the building meets exacting standards of sustainability. The Meetinghouse extends into a cove of rock outcroppings surrounded by a stand of mature pine trees and vegetated stormwater retention ponds.










